Bilocale in vendita

San Severo, Via Don Aldo Prato - Porta San Marco - Piazza Incoronazione - Ospedali
€ 59.000
2 locali 2 locali
85 Mq 85 Mq
1 bagno 1 bagno

Bilocale in vendita

San Severo, Via Don Aldo Prato - Porta San Marco - Piazza Incoronazione - Ospedali

Descrizione annuncio

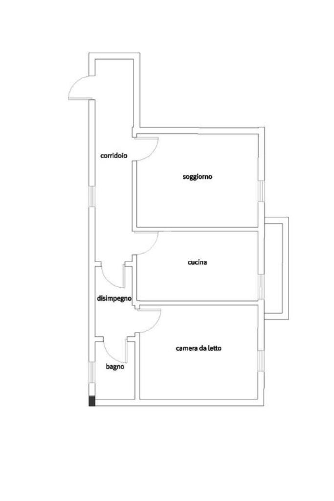
Nel cuore di San Severo, nella località di via Marconi si trova un accogliente appartamento posto al primo piano in vendita. L'appartamento, di 85 mq, è composto da due vani accessori , ideali per una coppia o una persona singola che cerca comfort e praticità. La zona giorno è luminosa e si affaccia su un balcone, perfetto per momenti di relax all'aperto. La camera da letto è spaziosa e ben illuminata, in più si ha la possibilità di un'ulteriore stanza. Completa l'immobile ,il bagno funzionale e ben rifinito. L'immobile rappresenta un'opportunità interessante per chi cerca una soluzione abitativa in una delle aree più servite.

San Severo Porta San Marco:

Per Maggiori info contattaci su:

WhatsApp: 3924562070

Facebook: Gruppo Tecnocasa San Severo Porta San Marco

Instagram:

Mostra tutto

Nelle vicinanze

Trasporto pubblico Trasporto pubblico
Stazione Ferroviaria di San Severo
Stazione Ferroviaria di San Severo
310 m
stazione di San Severo
stazione di San Severo
350 m
Trasporto pubblico
230 m
Via G. Rossa
Via G. Rossa
2,0 Km
Ricariche auto elettriche Ricariche auto elettriche
SAN SEVERO Iannarelli | ENELX
780 m
CONAD SAN SEVERO | ENELX
860 m
SAN SEVERO 2 Giugno | ENELX
940 m
EnelX PAN San Severo
1,2 Km
Comando Polizia Locale di San Severo | EnelX
1,6 Km
Scuole Scuole
Scuole
130 m
Scuola Elementare e dell'Infanzia San Giovanni Bosco
360 m
Scuola Primaria Umberto Fraccacreta
370 m
Liceo Scientifico G. Checchia Rispoli
570 m
Istituito comprensivo "Zannotti-Fraccacreta"
630 m
Farmacia Farmacia
La Sanitaria
420 m
Farmacia San Francesco
550 m
Farmacia Centrale
820 m
Parafarmacia Conad
950 m
Farmacia
1,1 Km
Ospedali Ospedali
Ortopedia D'Avena
840 m
Pronto Soccorso
860 m
Ospedale Teresa Masselli Mascia
880 m
Supermercati Supermercati
Sigma
630 m
Lidl
960 m
EuroSpin
970 m
Penny
1,5 Km
Discount MD
1,5 Km
Negozi Negozi
Panificio Ecologico
200 m
United Colors of Benetton
450 m
Terranova
460 m
SottoSopra
480 m
Calzedonia
480 m
Bar Bar
Charly
200 m
Alma 2
310 m
La Dolce Vita
320 m
Bar
420 m
London
440 m
Ristoranti Ristoranti
Pizzeria Benvenuti al Sud
240 m
Liberty
260 m
Chirurgo
460 m
Ristoranti
500 m
Arte Bianca
550 m
Mostra tutto

Caratteristiche

Rif.:
61085502
Piano:
1 (Piano basso)
Balconi:
1
Camere da letto:
1
Arredamento:
Assente
Condizionamento:
Predisposizione impianto
Mostra tutto
Prezzo Prezzo
€ 59.000
Rata mutuo Rata mutuo
€ 280 / mese
Proponi il tuo prezzoProponi il tuo prezzo
Immobile valutato con T·Valuta

Altre caratteristiche

Classe Energetica

G
G
G
G
G
G
G
G
G
EP globale non rinnovabile:
114.20 kW h/m² anno
EP globale rinnovabile:
1.04 kW h/m² anno
EP invernale del fabbricato:
EP estiva del fabbricato:
Anno di costruzione:
1975
Riscaldamento:
Autonomo
Tipo impianto:
A radiatori
Tipo alimentazione:
Metano

Ti interessa visionare l'immobile?

Fissa un appuntamento  Fissa un appuntamento

Richiedi informazioni

Clicca su Leggi per aprire l'informativa
* Questi campi sono obbligatori

Calcola il tuo mutuo

Semplice e senza impegno
Anticipo

( % )
Mutuo

( % )

pochi semplici passi

inserisci i tuoi dati
Questionario completato
Grazie per aver richiesto un appuntamento senza impegno con un nostro Consulente del Credito e Assicurativo.

Hai inserito correttamente tutti i dati necessari e a breve riceverai una e-mail con un link da convalidare per inviare i tuoi dati.
Affiliato
Studio Porta San Marco D.I.
Via Zannotti, 82/84 71016 San Severo (FG)

Il nostro staff


  • Marco Stuccilli
    Affiliato

  • Angela Del Franco
    Coordinatrice

  • Simone Scanzano
    Collaboratore
Via Zannotti, 82/84 71016 San Severo (FG)
Zona: San Severo-Centro-Ospedale-Stazione
Mostra su mappa
Orari: 8.30 13.00 16.00 20.45
Affiliato
Studio Porta San Marco D.I.
Via Zannotti, 82/84 71016 San Severo (FG)

2026 Tecnocasa Franchising S.p.A. - P. IVA 08365160152 - Via Monte Bianco 60/A 20089 Rozzano (MI). Ogni agenzia ha un proprio titolare ed è autonoma. Privacy policy | Policy utilizzo | Cookie policy