Quadrilocale in vendita

San Severo, Viale Due Giugno - Porta San Marco - Piazza Incoronazione - Ospedali
€ 99.000
Prezzo aggiornato
4 locali 4 locali
110 Mq 110 Mq
2 bagni 2 bagni

Quadrilocale in vendita

San Severo, Viale Due Giugno - Porta San Marco - Piazza Incoronazione - Ospedali

Descrizione annuncio

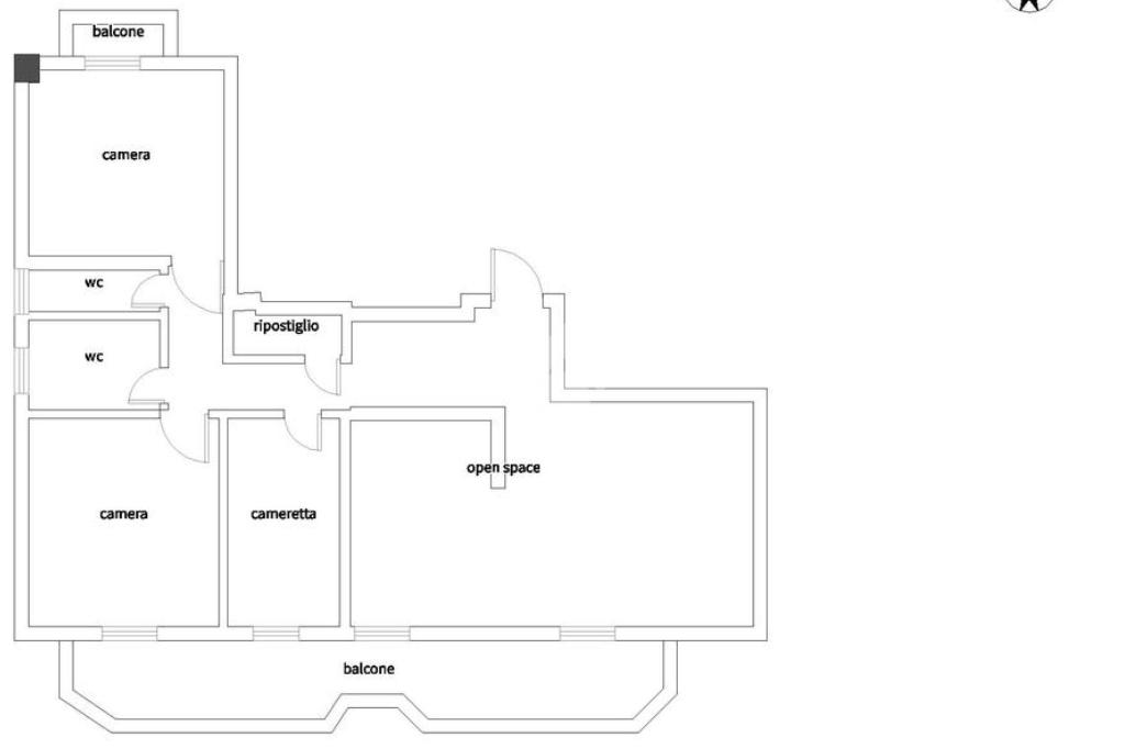
L'appartamento si trova al secondo piano di un accogliente e tranquillo condominio, ideale per famiglie o per chi cerca spazi ampi e funzionali.

All'ingresso, si è accolti da un luminoso corridoio che conduce alle diverse stanze dell'abitazione.

La spaziosa sala è perfetta per momenti di convivialità, grazie alla sua luminosità e alla possibilità di arredarla secondo i propri gusti.

La cucina abitabile, ben attrezzata, offre un ambiente ideale per preparare e gustare i pasti in famiglia o con gli amici.

La camera da letto è un rifugio di tranquillità, mentre le due camerette possono essere utilizzate come stanze per bambini, uffici o spazi hobby, offrendo versatilità e comfort.

I due bagni, uno dei quali potrebbe essere dedicato alla camera matrimoniale, garantiscono praticità e privacy.

La veranda rappresenta un'ottima soluzione per godersi momenti di relax all'aperto.

Inoltre, l'appartamento dispone di un ripostiglio, utile per tenere in ordine e organizzati gli oggetti di uso quotidiano.

Completa la proprietà un posto auto, che rappresenta un valore aggiunto.

Mostra tutto

Nelle vicinanze

Trasporto pubblico Trasporto pubblico
Stazione Ferroviaria di San Severo
Stazione Ferroviaria di San Severo
1,3 Km
stazione di San Severo
stazione di San Severo
1,3 Km
Trasporto pubblico
300 m
Via G. Rossa
Via G. Rossa
1,6 Km
Ricariche auto elettriche Ricariche auto elettriche
SAN SEVERO 2 Giugno | ENELX
410 m
CONAD SAN SEVERO | ENELX
860 m
Comando Polizia Locale di San Severo | EnelX
1,2 Km
SAN SEVERO Iannarelli | ENELX
1,4 Km
EnelX PAN San Severo
2,5 Km
Scuole Scuole
Scuola Superiore di Primo Grado Giovanni Palmieri
130 m
Scuole
230 m
Istituto Tecnico Industriale Alessandro Minuziano
270 m
Istituto Tecnico Economico "Angelo Fraccacreta"
280 m
Scuola Elementare Edmondo De Amicis
290 m
Farmacia Farmacia
Farmacia
260 m
Farmacia Centrale
480 m
Farmacia San Francesco
790 m
Parafarmacia Conad
830 m
Farmacia dr. Manzo
1,0 Km
Ospedali Ospedali
Ospedale Teresa Masselli Mascia
410 m
Ortopedia D'Avena
460 m
Pronto Soccorso
470 m
Supermercati Supermercati
Penny
270 m
Discount MD
330 m
Lidl
460 m
EuroSpin
560 m
Sigma
660 m
Negozi Negozi
Robe di Kappa
480 m
Terranova
550 m
Agricola
600 m
Forno Grassi
600 m
Original Marines
640 m
Bar Bar
Chiostro
190 m
Bar
280 m
Bar d'Ammmore
330 m
Caffetteria del Corso
350 m
Ramses Bar
610 m
Ristoranti Ristoranti
Pummarella
410 m
Pizzeria L'Arco
420 m
La Baracchina
470 m
Il Campione
640 m
Arte Bianca
740 m
Mostra tutto

Caratteristiche

Rif.:
60988888
Piano:
2 di 2 (Piano ammezzato)
Posti auto:
1
Balconi:
1
Camere da letto:
3
Arredamento:
Assente
Mostra tutto
Prezzo Prezzo
€ 99.000
Rata mutuo Rata mutuo
€ 470 / mese
Spese annue Spese annue
€ 360
Proponi il tuo prezzoProponi il tuo prezzo
Immobile valutato con T·Valuta

Classe Energetica

G
G
G
G
G
G
G
G
G
EP globale non rinnovabile:
102.72 kW h/m² anno
EP globale rinnovabile:
1.04 kW h/m² anno
EP invernale del fabbricato:
EP estiva del fabbricato:
Anno di costruzione:
1970
Riscaldamento:
Autonomo
Tipo impianto:
A pavimento
Tipo alimentazione:
Metano

Prezzo ridotto di €1 (6%%)

Ti interessa visionare l'immobile?

Fissa un appuntamento  Fissa un appuntamento

Richiedi informazioni

Clicca su Leggi per aprire l'informativa
* Questi campi sono obbligatori

Calcola il tuo mutuo

Semplice e senza impegno
Anticipo

( % )
Mutuo

( % )

pochi semplici passi

inserisci i tuoi dati
Questionario completato
Grazie per aver richiesto un appuntamento senza impegno con un nostro Consulente del Credito e Assicurativo.

Hai inserito correttamente tutti i dati necessari e a breve riceverai una e-mail con un link da convalidare per inviare i tuoi dati.
Affiliato
Studio Porta San Marco D.I.
Via Zannotti, 82/84 71016 San Severo (FG)

Il nostro staff


  • Marco Stuccilli
    Affiliato

  • Angela Del Franco
    Coordinatrice

  • Simone Scanzano
    Collaboratore
Via Zannotti, 82/84 71016 San Severo (FG)
Zona: San Severo-Centro-Ospedale-Stazione
Mostra su mappa
Orari: 8.30 13.00 16.00 20.45
Affiliato
Studio Porta San Marco D.I.
Via Zannotti, 82/84 71016 San Severo (FG)

2026 Tecnocasa Franchising S.p.A. - P. IVA 08365160152 - Via Monte Bianco 60/A 20089 Rozzano (MI). Ogni agenzia ha un proprio titolare ed è autonoma. Privacy policy | Policy utilizzo | Cookie policy